Art-vision
Студия дизайна
Art-Vision
Студия дизайна
Портфолио
ЖК Sheresh
SPA & Banaya Лесная 43
ЖК Врубеля 4
Услуги и цены
Дизайн-проект
Комплектация объекта
Авторский надзор
Консультация
О компании
+7 903 907-32-95
WhatsApp / Telegram
Онлайн
Галина Захлевная
онлайн
Галина Захлевная
Здравствуйте! Если у Вас остались вопросы — напишите мне в Telegram.
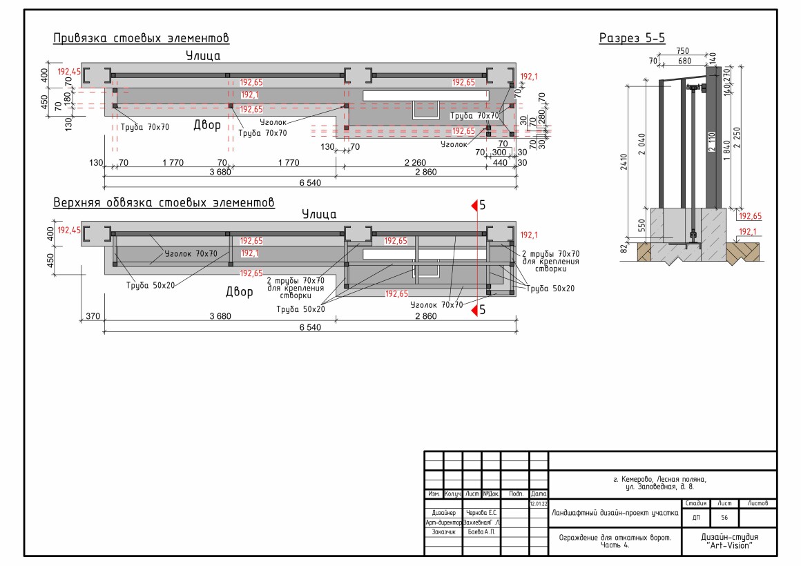
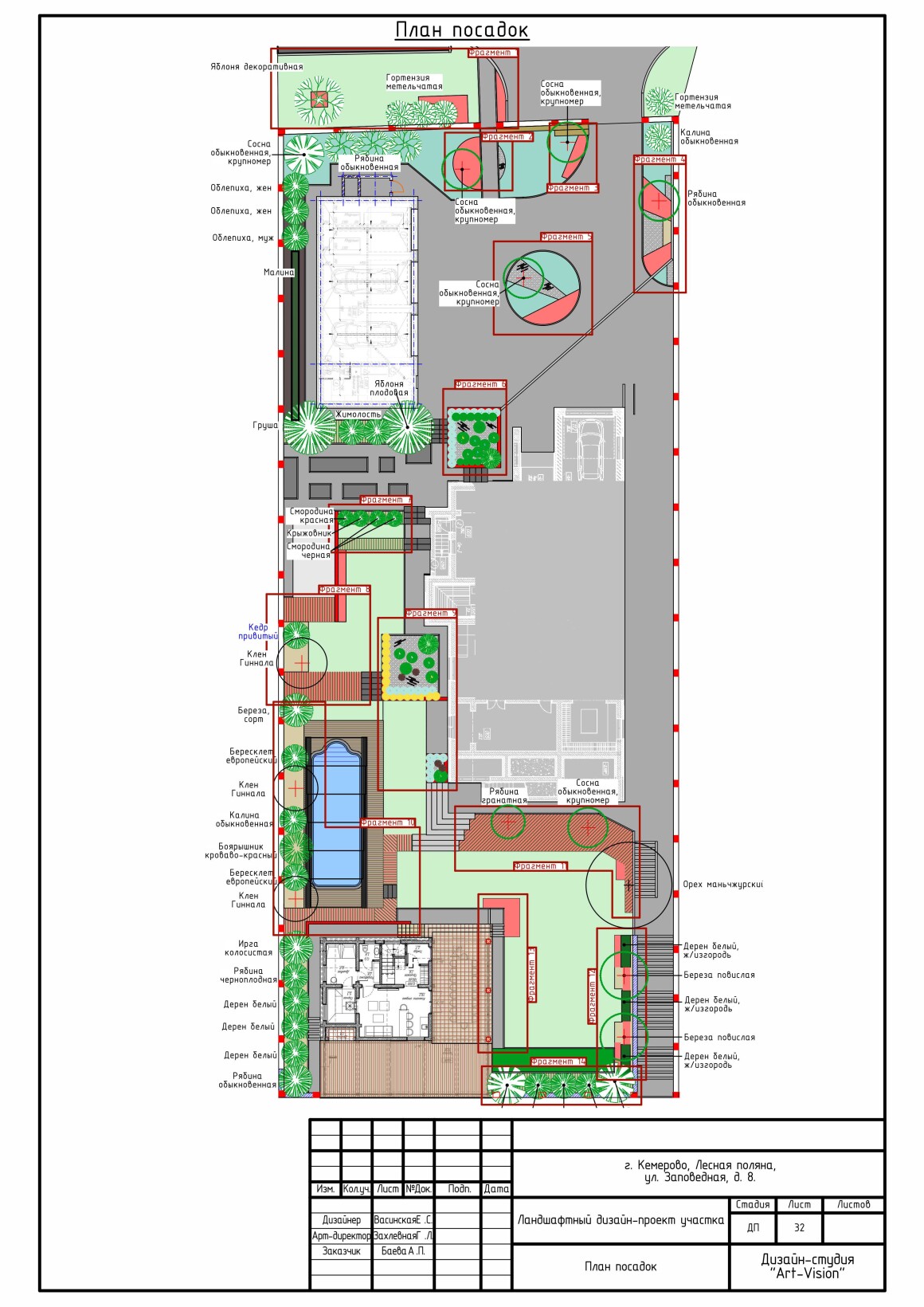
Состав Ландшафтного дизайн проекта
Выборочный комплект чертежей по ландшафтному проекту
Проект
Регистрация
Зарегистрироваться
Уже зарегистрированы? Авторизоваться
Авторизация
Войти
Забыли пароль?
Не зарегистрированы? Регистрация
Забыли пароль?
Введите e-mail, и мы поможем его восстановить
Восстановить
Вспомнил пароль! — Войти
Проверяйте почту, чтобы сменить пароль
Вспомнил пароль! — Войти
Вы авторизованы